Central Lake County JAWA Hunt Club Road & Washington Street Water Main Improvements

Central Lake County, Illinois

Project Cost

$2.5m

Completion

2025

Client

Central Lake County Joint Action Water Agency

About

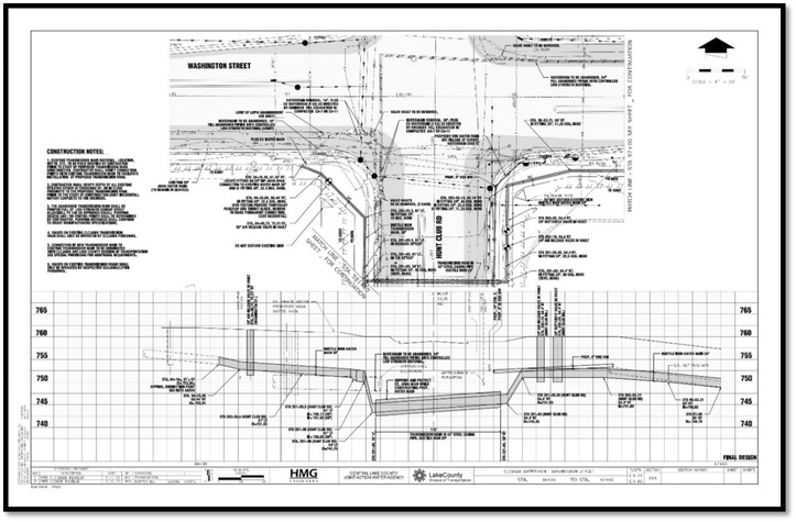
CLCJAWA is relocating 2,000+ feet of transmission main to support roadway improvements while ensuring uninterrupted service to 19 communities.

Read More

The Central Lake County Joint Action Water Agency (CLCJAWA) is relocating over 2,000 feet of its critical transmission water main to accommodate upcoming roadway improvements. This transmission line plays a vital role in supplying Lake Michigan water to 19 member communities.

The project scope includes installing new pipe, valves, and protective measures, with careful planning to minimize service interruptions. Construction is scheduled for summer 2024.

Services Provided

  • Preliminary Engineering
  • Final Design Engineering
  • Construction Engineering