O’Fallon, IL Distribution System Water Quality Improvements

O’Fallon, IL

Project Cost

$469,600

Completion

2024

Client

City of O’Fallon, ILlinois

About

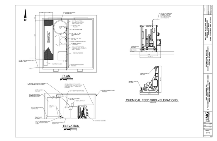
Distribution system modeling led to recommendations for new chlorination stations and control valves to improve tank turnover and overall water quality.

Read More

The project involved modeling the water distribution system to evaluate flow direction and tank fill/draw patterns, with a particular focus on improving water quality, including chlorine residual and water age.

Based on the analysis, recommendations were made to install three new chlorination feed stations and two control valves. These improvements are designed to optimize turnover in an underperforming elevated tank and enhance overall water quality throughout the system.

Services Provided

  • Study & Report Phase Engineering
  • Design Engineering
  • Construction Engineering